2013年7月1日

二層平面圖

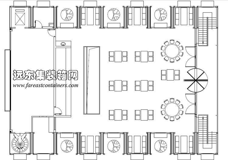
一層平面圖
圖 7.3 集裝箱餐廳平面圖
7.2.2 箱體組合設計
集裝箱餐廳共使用27個廢舊的40英尺標準集裝箱,由9品集裝箱門式結構組構而成(圖 7.4)。本項目使用了如前文表 5.2 中 F 欄所述的箱體大跨構成方式,由三個箱體構成,其中兩個集裝箱豎立放置用于豎向支撐,一個箱體水平放置用于屋頂的大跨結構,形成寬度大約為16.8米的,跨度約為12米的大跨空間。
水平放置的箱體上沿口與兩個豎立放置的箱體頂部平齊,共同構成建筑的平屋頂。依據集裝箱長寬高的模數,可以非常輕易的推算出建筑的面寬約為16.8米,檐口高度約為12米,九品集裝箱門式結構形成的建筑總長度為21.6米。
依據設計,在垂直放置的箱體中,每邊有三個箱體拆除了朝向室外側的鋼板(圖 7.5 中 g 圖),形成了錯落的空間序列,另每邊六個箱體拆除朝向室內側鋼板,作為內部空間的一部分,并在結構薄弱處和受力突變的地方進行了結構加強(圖 7.5 中 b、c、f 圖)。

圖 7.4 萬科生態集裝箱餐廳箱體及建筑構成示意圖
7.2.3 建造流程與措施
集裝箱餐廳建造過程也符合前文 6.1 所述集裝箱建筑的建造基本流程。首先,從深圳市鹽田港中集集團選購了適合使用、結構狀況良好的廢舊40英尺集裝箱。隨后,將選購的集裝箱箱體在工廠進行了除銹處理,并對箱體進行加固、開洞,并將窗洞上的環形遮陽板、鋼制牛腿等配件等依據設計圖紙在工廠進行了預制,最后,通過集裝箱卡車將改造后的箱體運輸到現場進行裝配組裝(圖 7.5 中 a 圖)。

(a)
相關內容:
查看更多集裝箱房屋|集裝箱活動房|住人集裝箱|集裝箱住宅|集裝箱建筑|二手集裝箱論文文獻