2013年6月27日
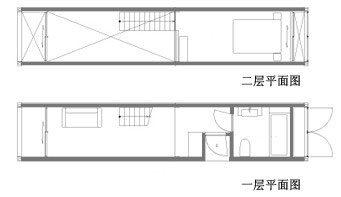
在日本橫濱港口的一體式集裝箱海濱公寓單體采用了兩箱體上下重疊放置的方式進行組合(圖 5.7)。入口處設置在底層中部,客廳為兩層通高的公共空間,底層布置客廳、入口、衛生間等功能,二層布置臥室功能。箱體與箱體之間通過對位的四個角部螺栓固定,再與基礎的混凝土底板連接,形成可以拆卸可再生利用的集裝箱建筑。





圖 5.7 日本橫濱集裝箱海濱公寓
位于新西蘭的 Stevens 集裝箱住宅,由 ROSS STEVENS 設計并建造。他使用3個40英尺標準鋼制集裝箱豎向排布來安排空間,同時利用箱體與山體之間的空間來增加其使用空間(圖 5.8)。底層為鋼結構框架構成的停車庫,上部為三層集裝箱疊加放置,在臨近山體部分設置了直跑樓梯及平臺至集裝箱二層。整個建筑充分利用了集裝箱與山體間的剩余空間,并結合集裝箱進行了空間布置。




圖 5.8 新西蘭 Stevens 集裝箱住宅
相關內容:
查看更多集裝箱房屋|集裝箱活動房|住人集裝箱|集裝箱住宅|集裝箱建筑|二手集裝箱論文文獻