集裝箱建筑適應性設計與建造研究(20)
2013年6月24日
4.3 單元箱體建筑適應性設計案例及分析
4.3.1 單箱體室內平面模塊化設計分析
當集裝箱用于不同的功能屬性使用時,室內平面功能模塊有著不同的布局,由于住宅室內建筑功能主要由沐浴模塊、如廁模塊、涮洗模塊、廚房模塊、床、寫字臺、以及各類貯藏空間組成。在這之中沐浴模塊、如廁模塊、涮洗模塊、廚房模塊這四個部分受到管道構造做法限制,在使用中無法移動更換位置,因此對室內功能布局起到關鍵性制約影響。依據這四個部分的空間屬性及入口位置,可以對集裝箱室內平面做到定性分析。
下面以20英尺集裝箱住宅室內空間為例,分別進行室內空間的布局統計與分析。從圖表中我們可以得知:當入口設置在箱體端部時,將廚房/衛生間等固定設施設置在入口附近,箱體空間明顯具有從公共到私密的空間性質,可以獲得更完整的內部居住空間;如果將廚房/衛生間等固定設施設置在集裝箱建筑遠離入口端,那么室內很難使用到箱體端部的采光,一般需要在側面增加采光口供室內照明。當入口設置在箱體中部時,可以在入口中部設置廚房/衛生間等固定設施,箱體兩端獲得獨立的完整空間,這兩個獨立的完整空間可以作為兩個獨立用房或者進行有效的功能分區,例如設置兩個獨立的臥室空間或者將衛生間和臥室分別放置在兩端進行分區。
㈠ 入口設置在箱體端部
① 入口處設置獨立小室作為廚房空間,從小室內進入衛浴空間,內部為獨立而完整的居住房間,功能分區最為徹底。開窗位于箱體兩端部,有利于左右拼接。

20英尺集裝箱平面布局

三箱體拼接示意
② 入口處為狹窄過道,廁所在過道一側,可以獲得較大的衛浴面積。簡易廚房設置在臥室空間內,與生活有干擾。開窗位于箱體側表面,不利于拼接。

20英尺集裝箱平面布局

四箱體拼接示意
③ 入口即進入起居空間,最大限度的產生居住空間。廚房位于起居空間內,對生活有干擾。箱體端部為衛浴空間。開窗開門分別位于箱體三個方向,不利于拼接。

20英尺集裝箱平面布局

兩箱體拼接示意
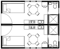
㈡ 入口設置在箱體端部
① 入口處面對主要起居空間,雙人床布置于箱體端部,較之端部入口可以獲得更好的起居環境。衛浴空間位于箱體端部。開窗與入口位于同側,可以進行長度方向拼接。

20英尺集裝箱平面布局

六箱體拼接示意
相關內容:
集裝箱建筑適應性設計與建造研究(1)
集裝箱建筑適應性設計與建造研究(2)
集裝箱建筑適應性設計與建造研究(3)
集裝箱建筑適應性設計與建造研究(4)
集裝箱建筑適應性設計與建造研究(5)
集裝箱建筑適應性設計與建造研究(6)
集裝箱建筑適應性設計與建造研究(7)
集裝箱建筑適應性設計與建造研究(8)
集裝箱建筑適應性設計與建造研究(9)
集裝箱建筑適應性設計與建造研究(10)
集裝箱建筑適應性設計與建造研究(11)
集裝箱建筑適應性設計與建造研究(12)
集裝箱建筑適應性設計與建造研究(13)
集裝箱建筑適應性設計與建造研究(14)
集裝箱建筑適應性設計與建造研究(15)
集裝箱建筑適應性設計與建造研究(16)
集裝箱建筑適應性設計與建造研究(17)
集裝箱建筑適應性設計與建造研究(18)
集裝箱建筑適應性設計與建造研究(19)
集裝箱建筑適應性設計與建造研究(21)
集裝箱建筑適應性設計與建造研究(22)
集裝箱建筑適應性設計與建造研究(23)
集裝箱建筑適應性設計與建造研究(24)
集裝箱建筑適應性設計與建造研究(25)
集裝箱建筑適應性設計與建造研究(26)
集裝箱建筑適應性設計與建造研究(27)
集裝箱建筑適應性設計與建造研究(28)
集裝箱建筑適應性設計與建造研究(29)
集裝箱建筑適應性設計與建造研究(30)
集裝箱建筑適應性設計與建造研究(31)
集裝箱建筑適應性設計與建造研究(32)
集裝箱建筑適應性設計與建造研究(33)
集裝箱建筑適應性設計與建造研究(34)
集裝箱建筑適應性設計與建造研究(35)
集裝箱建筑適應性設計與建造研究(36)
集裝箱建筑適應性設計與建造研究(37)
集裝箱建筑適應性設計與建造研究(38)
集裝箱建筑適應性設計與建造研究(39)
集裝箱建筑適應性設計與建造研究(40)
集裝箱建筑適應性設計與建造研究(41)
集裝箱建筑適應性設計與建造研究(42)
集裝箱建筑適應性設計與建造研究(43)
集裝箱建筑適應性設計與建造研究(44)
集裝箱建筑適應性設計與建造研究(45)
集裝箱建筑適應性設計與建造研究(46)
集裝箱建筑適應性設計與建造研究(47)
集裝箱建筑適應性設計與建造研究(48)
集裝箱建筑適應性設計與建造研究(49)
集裝箱建筑適應性設計與建造研究(50)
集裝箱建筑適應性設計與建造研究(51)
集裝箱建筑適應性設計與建造研究(完)
查看更多集裝箱房屋|集裝箱活動房|住人集裝箱|集裝箱住宅|集裝箱建筑|二手集裝箱論文文獻