2013年6月28日
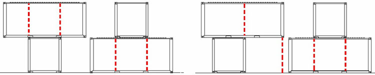
在上下箱體十字交錯放置,如果需要室內解決豎向交通時,有兩種交通組織方式。一種方式為兩個獨立箱體進行簡單疊加,再通過室外樓梯解決豎向交通,此時通過樓梯進入一層箱體頂部即二層室外平臺再進入二層箱體。這種構成方式中,上層箱體宜在箱體中部,平臺位置開設入口,并依據(圖 5.16 和圖 5.20)中所示方式進行結構補強。另一種是在箱體投影的重疊部分內進行安排樓梯。通過錯動移位,十字交錯放置可以演變出以下幾種構成組合方式(圖 5.18)。

圖 5.18 上下箱體十字交錯放置演變的組合方式
布列塔尼集裝箱住宅,使用了上下箱體垂直交錯,二層箱體與首層之間形成懸挑構成。上面出挑的箱體為臥室,下面的兩個箱體為起居和就餐使用(圖 5.19),豎向交通在箱體內布置,并出于結構安全性考慮。

圖 5.19 集裝箱箱體上下拼接懸挑構型
在上下箱體相互垂直錯開放置方式中,若拆除側鋼壁板,需要對箱體進行加柱處理。圖 5.20 分別代表上下箱體錯開的相對位置不同時需要加設的鋼柱位置,紅色虛線為附加鋼柱。

圖 5.20 上下箱體相互垂直錯開的加柱方式
5.1.2.4 上下箱體共同構成大跨空間
上下箱體共同構成大跨空間(圖 5.21),上部為橫跨在兩端的單箱體,下部由兩箱體或垂直疊加的多箱體承擔,通過這種方式形成下部較大跨度的覆蓋空間。

圖 5.21 上下箱體共同構成大跨空間
在大跨構型中,當使用不同的箱體,進行不同的拼接方式時,下部形成的空間跨度也不同。通過這種大跨構型,可以構成從簡單的上下拼接建筑到大跨空間各種建筑空間(表 5.2)。
當上部箱體使用20英尺集裝箱箱體時,跨度可以調整為1.2米和6.0米;當上部箱體使用40英尺集裝箱箱體時,寬度可以調整為7.3米和12.0米,依據不同的功能需要選擇相適應的跨度和建筑寬度。
表 5.2 上下箱體共同構成的各種跨度空間
| 上部箱體 | 拼接方式示意 | 跨度凈寬 | 總寬度 | |
| 20英尺集裝箱 | A | ![]() |
6.0米 | 10.6米 |
| 40英尺集裝箱 | B | ![]() |
7.3米 | 12.0米 |
| C | ![]() |
9.8米 | 14.6米 | |
| D | ![]() |
11.6米 | 16.4米 | |
| E | ![]() |
11.8米 | 16.6米 | |
| F | ![]() |
12.0米 | 16.8米 |
相關內容:
查看更多集裝箱房屋|集裝箱活動房|住人集裝箱|集裝箱住宅|集裝箱建筑|二手集裝箱論文文獻