2013年6月29日

三層平面圖

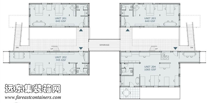
一層平面圖

二層平面圖
圖 5.34 羅德島 box office 集裝箱辦公樓平面圖
5.1.3.3 圍合大型內部空間的組合設計
1. 箱體作為大跨結構
依據表 5.2 所示,40英尺標準集裝箱的跨度可以為7.3米至12米,可以滿足一般建筑到大跨度建筑的各種功能空間需求。
韓國首爾 platoon 多功能文化中心(圖 5.35)由 Graft 建筑事務所設計,建成于2009年。建筑由28個40英尺長的集裝箱經過切割、加固重新構成。在設計中集裝箱起主要結構作用,頂部由40尺集裝箱作為屋面結構,如表 5.2 中 E 欄所示,頂部箱體跨度約為11.8米。在箱體內部使用了切割后長20尺的集裝箱箱體懸挑布局,作為功能用房利用(圖 5.36-圖 5.37),另外還在室內增加了局部鋼結構的挑板作為交通走廊使用。在頂部集裝箱空隙處使用雙層玻璃作為采光天窗。

圖 5.35 韓國首爾 Platoon 多功能藝術中心

圖 5.36 韓國首爾 Platoon 多功能藝術中心箱體構成
相關內容:
查看更多集裝箱房屋|集裝箱活動房|住人集裝箱|集裝箱住宅|集裝箱建筑|二手集裝箱論文文獻