2013年6月26日
由法國 olgga architects 事務所設計的“crou”集裝箱學生宿舍方案,由100個廢舊集裝箱相互堆疊并適應性改造而成。在此設計中每個單元使用40英尺集裝箱箱體,分別使用了端入式和側入式兩種布局。
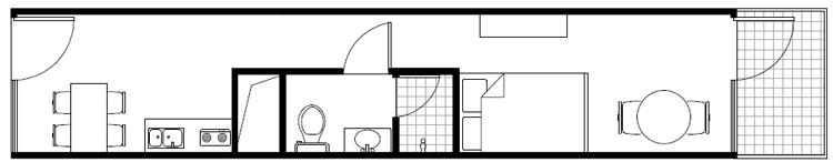
在端入式的集裝箱箱體內部設計中(圖 4.18),入口處為獨立的用餐空間,布置有廚房設備和雙人餐臺;中部為廁衛與沐浴洗漱相分離的個人衛生空間,在衛浴空間緊鄰側箱壁布置有上下水的管井;隨后充分利用進深方向采光較弱的特點,將壁龕式的睡眠空間布置在整個箱體最中間位置;在遠端布局有一個很大的工作空間,并通過落地窗帶給室內充足的采光。

圖 4.18 集裝箱學生宿舍方案(端入式)
側部入口式的箱體布局(圖 4.19)主要考慮可供使用輪椅的殘疾人使用,所有的家具部品空間均緊貼在箱體一側,盡可能擴大交通空間;入口正對廚房家電餐臺,在入口的左側布局有就餐空間、廚房用具、以及一個特別寬敞足夠輪椅轉向的衛生間;在入口右側布局有寫字臺、書柜、以及緊貼于側壁的衣柜,床位于箱體的一側,并臨近窗戶。側入式的布局將室內的交通空間盡可能擴大,并減少了固定柜體對空間的占用。

圖 4.19 集裝箱學生宿舍方案(側入式)
Temperhousing 公司設計了一系列集裝箱建筑箱體單元。分別為內廊式、單廊式、雙廊式三種類型。通過設施和空間的不同,發展為幾種不同的箱體產品款式。
單廊式箱體單元:使用一個完整的40英尺箱體作為一個獨立的室內套間使用,采用端入式的組織方式,從箱體一端進入,另一端為落地玻璃窗或附加陽臺。管道、衛浴設施、廚房設備位于箱體中部(圖 4.20)。

圖 4.20 端入式單側外走廊宿舍布置方式
內廊式箱體單元:由一個完整的40英尺集裝箱改造而來,切除箱體中部的部分側壁,形成中間走廊而成。箱體被分割為兩個獨立的單元空間,分別位于走廊兩側,每個房間內入口為洗漱空間,內部為就寢的房間,類似于酒店客房的布局。改動后將數個相同的箱體拼合,使得此類單箱體構成的建筑無需附加結構便可支撐走廊(圖 4.21)。

圖 4.21 端入式內走廊宿舍布置方式
雙廊式箱體單元:使用一個完整的40英尺集裝箱,通過集裝箱箱體的中部隔斷,分隔出兩個相互獨立的房間,而每個獨立的房間分別由集裝箱兩端的入口進入。這樣可以最大限度的減少對原有箱體的破壞,僅僅在端部拆除原有金屬構件置換成窗口及門,附加兩端的走廊設施,便可以完成宿舍的改造。較之內廊式宿舍改造更加經濟且方便。
雙廊式箱體單元中,可以分為內部空間完全隔斷與不完全隔斷兩種。在不完全隔斷的雙廊式箱體單元中,由一個40英尺集裝箱改造而成可供兩人居住使用的單身宿舍;入口分別設在箱體兩端,由兩邊的入口分別進入室內共享位于箱體中部的衛浴設施;每個人分別使用各自的就寢空間、簡易廚房器具等設備,每個房通向中央衛浴空間都有設有帶鎖的門,可以相對保持單元空間的隱私(圖 4.22)。

圖 4.22 雙側外走廊雙人間室內布局
內部空間完全隔斷的雙廊式箱體單元,也是由40英尺集裝箱改造而成的兩人間,入口分設在箱體兩端,中央部分通過管道設備空間隔開,每個房間有獨立的衛浴空間以及廚房設備。(圖 4.23)

圖 4.23 雙側外走廊兩獨立單人間室內布局
4.4 本章小結
本章主要對集裝箱室內空間的適應性設計進行了分析和研究。首先從人體工程學的角度出發,對箱體內部空間做了微觀分析與精細化設計。其次用模塊化的觀點對箱體空間布局進行了研究。最后分類別對單箱體建筑的設計進行了案例分析。
相關內容:
查看更多集裝箱房屋|集裝箱活動房|住人集裝箱|集裝箱住宅|集裝箱建筑|二手集裝箱論文文獻