2013年4月26日
五、實例選錄
這一章中收集了六個集裝箱建筑的實例,其中四例曾經在“組合變化”一章中出現過。相較前面幾個章節中抽象圖解式的示意,這里提供總圖、平面、剖面和立面等更為詳細的測繪資料,同時就各建筑的類型、使用、基本特點等作簡略的說明。本章的著眼點并不在于探討設計原則和形式類型,而在于集裝箱建筑實例本身。
1. 青木建筑工地宿舍(中港道,上環,港島,檔案號039)
此為香港國際機場機場快線港島站的工地宿舍,共有兩座獨立的建筑組成,每座由兩行各六個上下整齊疊加的集裝箱平行相間排列,兩行之間略有錯位,在頂部有鋼條以規律的間距相連,在中層是鋼格柵平臺,有樓梯通達。工人利用頂部之鋼條以及中層之鋼格柵來晾曬衣物。每個集裝箱為單獨的宿舍,雙層通鋪順長排列。所有集裝箱單元均裝有窗式空調。



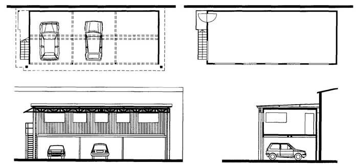
2. 鐘泰木材公司(坪輋路,打鼓嶺,新界,檔案號056)
這是一個非常簡單的小型公司辦公室。上層是兩個短集裝箱(40ft)合并的辦公空間,下層是半開敞的車庫。它的獨特之處在于屋面是由獨立的柱子及后面的建筑側墻來支撐,其優點何在未明。集裝箱本身是以桁架支撐,荷載傳至兩端,這樣可以減少中間柱子的數量。



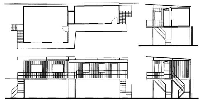
3. Fei Hung 汽車零配件公司(錦田路,錦田,新界,檔案號057)
這是一間位于新界的汽車零配件修配公司,上層是辦公室,下層是車庫和修配間。三個集裝箱呈曲尺型排列,用鋼結構支撐,其中的兩個合并為大空間。兩組之間有一個空隙,形成一個儲藏或廁所的小空間。建筑的兩邊各有一個樓梯通達上層,以一貫通的挑廊相連。一個大的鐵皮屋面遮蓋了整個建筑。



相關內容:
查看更多集裝箱房屋|集裝箱活動房|住人集裝箱|集裝箱住宅|集裝箱建筑|二手集裝箱論文文獻