遠東集裝箱網
規劃 設計 制造 施工
一 站 式 服 務 提 供 商
2013年6月11日
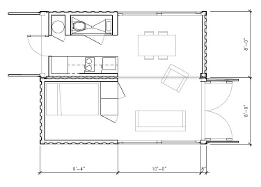
集裝箱房屋型號: c320 lookout
C320 lookout這種型號的集裝箱房屋已經被電視、HGTV、書籍、雜志等所廣泛報道。這個設計把c160 namad和c160 scout結合在了一起,創造出一個16尺×20尺(一個標準集裝箱尺寸為8尺×20尺)的結構。在運輸時,仍然可以作為兩個獨立的20尺標準集裝箱單元進行,整棟集裝箱房屋只需一個下午就可以完全搭建好。和其它的C系列產品一樣,c320 lookout也是在工廠就全部完成制造和檢測,然后整體運輸到放置地點即可。另外,在需要時,20尺的觀景單元還可以作為附件組裝到集裝箱房屋上以增加整棟建筑的空間。


下圖是HyBrid2005年在美國西雅圖附近完成的一個c320 lookout項目,一個野外的居所。

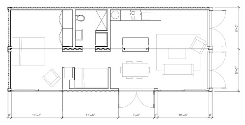
集裝箱房屋型號: c640 lookout
C640 lookout是c系列集裝箱房屋中設計規模最大的一種,它把兩個40尺集裝箱結合在一起創造出16尺×40尺的結構(總面積達640平方英尺)。它仍然可以分別以兩個40尺模塊單元的形式進行運輸,然后快速的組裝起來。C640的亮點在于它擁有一個帶有洗衣房的浴室、一個大型的廚房、一個視聽媒體室、一個通向大廳的臥室以及更高的室內高度(注:40尺集裝箱通常為HC,高度為2.9米,要高于20尺標準集裝箱的2.6米)。


下圖是在2008年作為Santa Monica市的再循環科教中心而建造的c640集裝箱房屋項目,非常合適作為一個不需要水管裝置的辦公室環境。

相關內容:
查看更多集裝箱房屋|集裝箱活動房|住人集裝箱|集裝箱住宅|集裝箱建筑|二手集裝箱設計創意