2013年6月11日
本案例展示的是美國HyBrid公司C系列的集裝箱房屋設計作品。
集裝箱房屋型號: c160 scout
C160 scout非常適合作為放置在后院的度假屋或者家庭辦公場所。這種型號的集裝箱房屋具有完備的隔熱保溫和取暖系統,同時它精簡過的尺寸使得它可以進行快速的安裝和入住。一個多用途水槽作為集裝箱房屋可升級的配件提供給園藝、藝術和陶藝愛好者。


下圖是c160 scout在2005年Olympic Sculpture公園開幕式上。

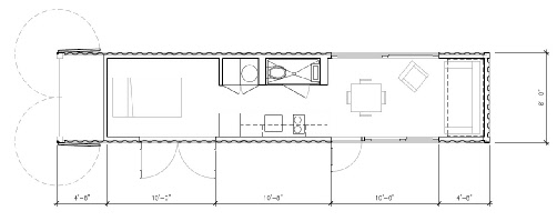
集裝箱房屋型號: c192 nomad
C192 nomad又被稱為Sunset Idea House 2011,這種型號的集裝箱房屋可以供一家四口人使用。房屋用一個20尺集裝箱改造而成,它還可以再添加一個床位或者雙層床位。大面積的落地玻璃設計使得居住者可以充分的和周圍環境融為一體,非常適合作為放置在后院里的小型別墅或者去遠處旅行時的度假屋。


下圖是c192 nomad在2011年美國加州的Menlo公園。

集裝箱房屋型號: c320 nomad
C320 nomad是c192 nomad的升級版,這種型號的集裝箱房屋是用一個40尺集裝箱改造而成,擁有一個獨立的臥室和一個通過門前的走廊可以到達的儲藏室。C320設計的初衷就是可以作為遠途旅行時的安營度假屋,它以一個模塊整體的形式進行方便的運輸,并可以被快速的搭建和拆卸。C320開闊的落地玻璃設計、可擴展的居住空間以及用來存放娛樂設施的儲藏室,使得它能給您的戶外活動增添更多的樂趣。


下圖不是c320 nomad,而是跟它具有相同結構不過寬度為它兩倍的一種型號,名為c360 lookout,建于2011年。

相關內容:
查看更多集裝箱房屋|集裝箱活動房|住人集裝箱|集裝箱住宅|集裝箱建筑|二手集裝箱設計創意