遠東集裝箱網
規劃 設計 制造 施工
一 站 式 服 務 提 供 商
2014年6月14日

孩子們在集裝箱建筑: Ajda 2 集裝箱幼兒園的磁性立面上創作

集裝箱建筑: Ajda 2 集裝箱幼兒園的落地玻璃窗

集裝箱建筑: Ajda 2 集裝箱幼兒園的柚木露臺

集裝箱建筑: Ajda 2 集裝箱幼兒園的柚木露臺

集裝箱建筑: Ajda 2 集裝箱幼兒園的活動室

集裝箱建筑: Ajda 2 集裝箱幼兒園一層平面圖

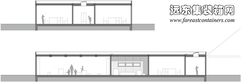
集裝箱建筑: Ajda 2 集裝箱幼兒園剖面圖

集裝箱建筑: Ajda 2 集裝箱幼兒園建造階段
相關內容: