遠東集裝箱網
規劃 設計 制造 施工
一 站 式 服 務 提 供 商
2014年6月14日

集裝箱建筑: Venny 集裝箱兒童中心的多功能活動空間

集裝箱建筑: Venny 集裝箱兒童中心的藝術創作地板

集裝箱建筑: Venny 集裝箱兒童中心放下卷簾門后的多功能活動空間

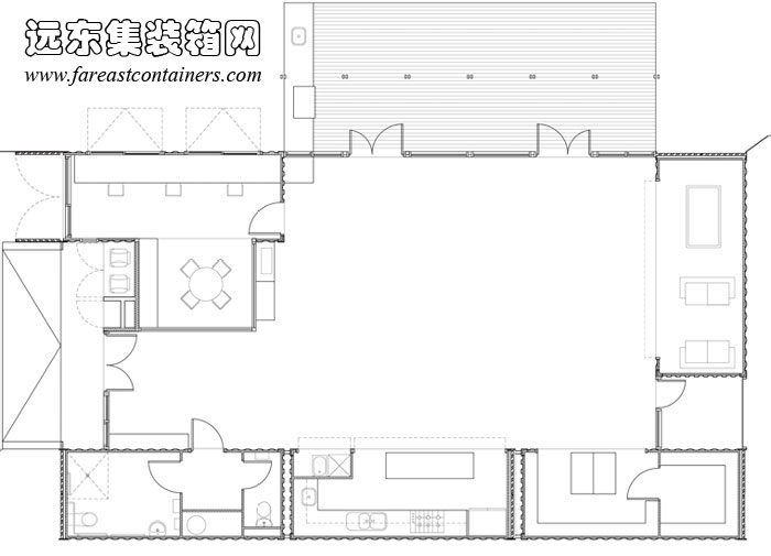
集裝箱建筑: Venny 集裝箱兒童中心一層平面圖

集裝箱建筑: Venny 集裝箱兒童中心立面圖

集裝箱建筑: Venny 集裝箱兒童中心立面圖(門打開時)

集裝箱建筑: Venny 集裝箱兒童中心剖面圖
相關內容: