遠東集裝箱網
規劃 設計 制造 施工
一 站 式 服 務 提 供 商
2014年6月12日

Wardell/Sagan 集裝箱住宅內的衛浴空間

Wardell/Sagan 集裝箱住宅室內的休息處

Wardell/Sagan 集裝箱住宅的廚房和餐廳

Wardell/Sagan 集裝箱住宅陳列的藝術品

Wardell/Sagan 集裝箱住宅的屋頂露臺

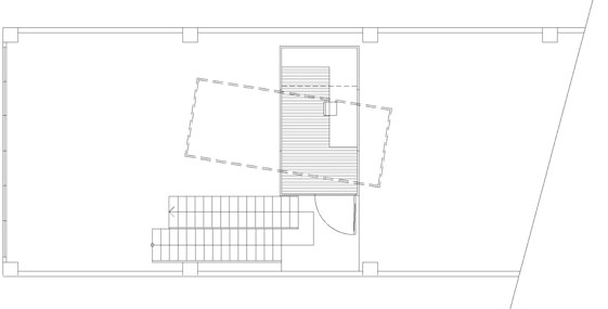
Wardell/Sagan 集裝箱住宅的二層平面圖

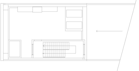
Wardell/Sagan 集裝箱住宅的一層平面圖
相關內容: