Bayside Marina 集裝箱酒店(完)
2014年6月11日

Bayside Marina 集裝箱酒店的落地玻璃窗

Bayside Marina 集裝箱酒店的窗前

Bayside Marina 集裝箱酒店的室內布置

Bayside Marina 集裝箱酒店的安裝過程

Bayside Marina 集裝箱酒店的二層平面圖

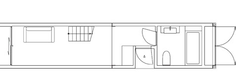
Bayside Marina 集裝箱酒店的一層平面圖

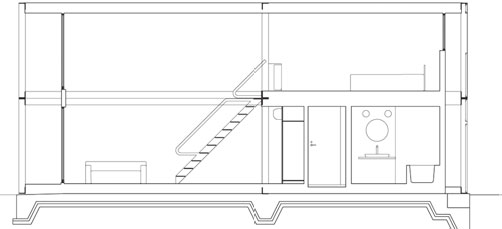
Bayside Marina 集裝箱酒店的剖面圖
相關內容:
Bayside Marina 集裝箱酒店(1)
查看更多集裝箱房屋|集裝箱酒店|集裝箱賓館|集裝箱旅社|集裝箱公寓設計案例