遠東集裝箱網
規劃 設計 制造 施工
一 站 式 服 務 提 供 商
2013年12月4日

BOXPARK shoreditch 盒子公園集裝箱購物中心的珍珠奶茶店

BOXPARK shoreditch 盒子公園集裝箱購物中心的地理位置

BOXPARK shoreditch 盒子公園集裝箱購物中心的外觀效果圖

BOXPARK shoreditch 盒子公園集裝箱購物中心的外觀效果圖

BOXPARK shoreditch 盒子公園集裝箱購物中心一層布置圖

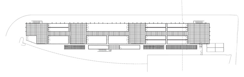
BOXPARK shoreditch 盒子公園集裝箱購物中心一層平面圖

BOXPARK shoreditch 盒子公園集裝箱購物中心二層布置圖

BOXPARK shoreditch 盒子公園集裝箱購物中心二層平面圖

BOXPARK shoreditch 盒子公園集裝箱購物中心的單個店鋪設計圖
相關內容:
BOXPARK shoreditch 盒子公園集裝箱購物中心(1)
BOXPARK shoreditch 盒子公園集裝箱購物中心(2)
BOXPARK shoreditch 盒子公園集裝箱購物中心(3)
查看更多集裝箱房屋|集裝箱活動房|住人集裝箱|集裝箱住宅|集裝箱建筑|二手集裝箱作品案例