遠東集裝箱網
規劃 設計 制造 施工
一 站 式 服 務 提 供 商
2013年11月18日

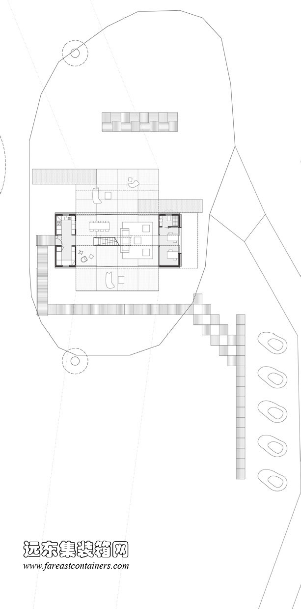
Infiniski Manifesto House 集裝箱別墅總平面圖

Infiniski Manifesto House 集裝箱別墅一層平面圖

Infiniski Manifesto House 集裝箱別墅一層平面圖

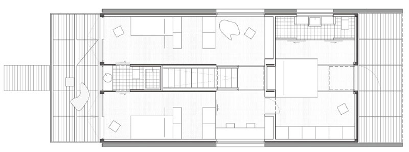
Infiniski Manifesto House 集裝箱別墅二層平面圖

Infiniski Manifesto House 集裝箱別墅二層平面圖

Infiniski Manifesto House 集裝箱別墅剖面圖

Infiniski Manifesto House 集裝箱別墅立面圖
相關內容:
集裝箱別墅設計:Infiniski Manifesto House(1)
集裝箱別墅設計:Infiniski Manifesto House(2)
集裝箱別墅設計:Infiniski Manifesto House(3)
集裝箱別墅設計:Infiniski Manifesto House(4)
查看更多集裝箱房屋|集裝箱活動房|住人集裝箱|集裝箱住宅|集裝箱建筑|二手集裝箱作品案例