遠東集裝箱網
規劃 設計 制造 施工
一 站 式 服 務 提 供 商
2013年6月7日
這個集裝箱公寓項目位于美國西雅圖的市區內,靠近港口和火車站附近。每間公寓都是由兩個回收的廢棄標準集裝箱構成,每個集裝箱都裝配有和木質模塊化住宅類似的嵌板和管道系統。這些集裝箱由卡車運送到現場,然后被吊裝到指定位置。房間內配有木地板,其中的一面墻壁被改造成落地玻璃窗,從而使得人們在室內就可以融入自然。中間庭院的鋼鐵走道使得人們可以充分感受流經公寓的一片濕地的自然風景。項目的建造周期僅僅相當于傳統建筑的一半,而且不需要對集裝箱進行過多改造整棟建筑就可以達到6層高。
集裝箱公寓外觀效果圖

集裝箱公寓整體平面規劃圖

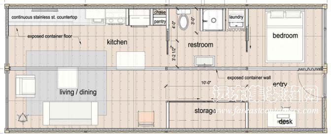
集裝箱公寓室內平面圖

集裝箱公寓室內效果圖

集裝箱公寓室內效果圖

相關內容:
查看更多集裝箱房屋|集裝箱活動房|住人集裝箱|集裝箱住宅|集裝箱建筑|二手集裝箱設計創意