遠東集裝箱網
規劃 設計 制造 施工
一 站 式 服 務 提 供 商
2013年5月30日
集裝箱住宅的所有單元都是按照要求進行定制和運輸

集裝箱住宅的室內都是用富有紋理的木材進行裝飾

集裝箱住宅室內的布置格局可以進行自由變換

集裝箱住宅配有室外的洗漱池


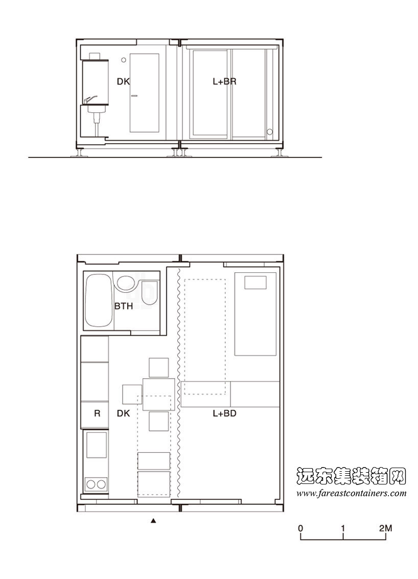
集裝箱住宅的平面設計圖

相關內容:
集裝箱住宅作品: Ex-Container project(1)
集裝箱住宅作品: Ex-Container project(完)
查看更多集裝箱房屋|集裝箱活動房|住人集裝箱|集裝箱住宅|集裝箱建筑|二手集裝箱作品案例